Description
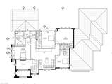
RESIDENTIAL LOT TO BUILD YOUR DREAM HOME. LOT IS READY TO BUILD WITH ARCHITECTURAL PLANS. SEE PHOTOS OF RENDERINGS/FLOORPLAN OF ARCHITECTURAL PLANS AVAILABLE. RESIDENTIAL LOT IN HIGHLY SOUGHT AFTER THE MOORINGS NEIGHBORHOOD. CLOSE TO DOWNTOWN, BEACHES AND ELIGIBLE TO BECOME MEMBER OF MOORING COUNTRY CLUB. GREAT OPPORTUNITY FOR BUILDER INVESTOR OR SOMEONE LOOKING TO BUILD THEIR OWN HOME!
-
0BEDS
-
0.37ACRES
-
0BATHS
-
01/2 BATHS
School Ratings & Info
Description
RESIDENTIAL LOT TO BUILD YOUR DREAM HOME. LOT IS READY TO BUILD WITH ARCHITECTURAL PLANS. SEE PHOTOS OF RENDERINGS/FLOORPLAN OF ARCHITECTURAL PLANS AVAILABLE. RESIDENTIAL LOT IN HIGHLY SOUGHT AFTER THE MOORINGS NEIGHBORHOOD. CLOSE TO DOWNTOWN, BEACHES AND ELIGIBLE TO BECOME MEMBER OF MOORING COUNTRY CLUB. GREAT OPPORTUNITY FOR BUILDER INVESTOR OR SOMEONE LOOKING TO BUILD THEIR OWN HOME!
The data relating to real estate for sale on this limited electronic display come in part from the Broker Reciprocity Program (BR Program) of M.L.S. of Naples, Inc. Properties listed with brokerage firms other than Premier Sothebys International Realty are marked with the BR Program Icon or the BR House Icon and detailed information about them includes the name of the Listing Brokers. The properties displayed may not be all the properties available through the BR Program. The accuracy of this information is not warranted or guaranteed. This information should be independently verified if any person intends to engage in a transaction in reliance upon it. Data last updated 2026-02-18T10:25:56.363. Some properties that appear for sale on this website may no longer be available. For the most current information, contact Premier Sothebys International Realty, 239-860-7176, bouncedemail@boomtownroi.com. Licensed in the State of Florida.
Listing courtesy of Alfred Robbins Realty Group: 239-529-6064.